天河南路南寧遠路西地塊、
寧遠路西平安路北地塊規劃條件
一、項目名稱(chēng):天河南路南寧遠路西地塊、寧遠路西平安路北地塊規劃條件
二、項目位置:天河南路南側、寧遠路西側、樂(lè )活三路東側、平安路北側
三、公示期限:30日(2024年6月14日至2024年7月14日)
四、咨詢(xún)電話(huà):0391-8786205、0391-2589190
五、公示說(shuō)明:如有意見(jiàn)和建議,請于公示期滿(mǎn)前以書(shū)面形式向我局反饋。
六、附件
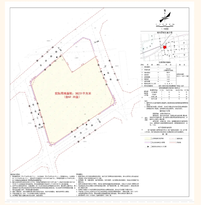
1、樂(lè )活三路東側、平安路北側。規劃包含1塊住宅用地,1塊幼兒園用地。詳情如下:



▲地塊大概位置標注(點(diǎn)擊可放大看圖)
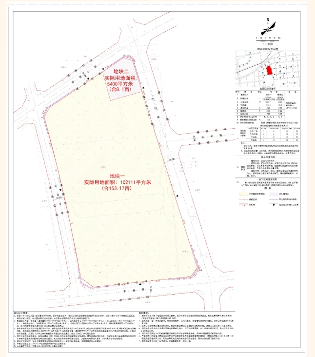
2、天河南路南側、寧遠路西側。規劃包含1塊住宅用地。詳情如下:



▲地塊大概位置標注
來(lái)源:焦作市自然資源和規劃局




